Herrsching/Wartaweil – Traumwohnung mit Sonnenterrasse, Garten und Seezugang
Direkt am süd-östlichen Ufer des Ammersees, in Wartaweil, einer kleinen Siedlung südlich von Herrsching, können wir Ihnen diese traumhafte 2-Zimmerwohnung mit direktem Seezugang zur Anmietung anbieten.
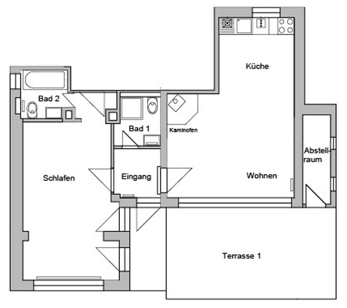
Die charmante, neu renovierte Wohnung liegt im Erdgeschoss eines 2-Familienhauses und bietet alles was das Leben angenehm macht. Das schöne Wohnzimmer mit Kaminofen, bodentiefen Schiebfenstern über die gesamte Raumbreite ist schon auf dem Weg zum Eingang ein Blickfang. Die offene, angrenzende Küche hat alle Anschlüsse für eine Einbauküche. Das Schlafzimmer mit den großen Erkerfenstern zum Garten ist eigentlich zu schön um nur zum Schlafen genutzt zu werden, der vordere Bereich bietet sich hier ideal als Lese- oder Arbeitsbereich an. Von beiden Räumen hat man hat man direkten Zugang zur ca. 15 m² großen Sonnenterrasse und dem angrenzenden eigenen Garten. Im westliche Eck des Gartens ist eine zweite, als Oase der Ruhe zu bezeichnende Terrasse bzw. Freisitz. Ein vom Schlafzimmer aus begehbares Privatbad mit Badewanne sowie ein vom Flur zugängliches Duschbad, beide mit zeitloser, moderner weißer Ausstattung, ein geölter Eichenparkett in allen Räumen, TV-Satanlage und hochwertige Ausstattungsdetails – hier bleiben keine Wünsche unerfüllt.
Ein weiteres Highlight ist der direkte Zugang über den Garten und einen kleinen Seeweg zum Badeplatz am Ufer des Ammersees. Von hier kann man gleich zum Segeln, Surfen oder SUP-en starten. Nicht nur im Sommer, auch in den anderen Jahreszeiten erlebt man hier unberührte, fast schon wilde Natur. Derr Seeuferweg lädt zu ausgedehnten Spaziergängen ein. Auch eine Wanderung durch das atemberaubende Kiental zum Kloster Andechs bietet sich an.
Lage:
Wartaweil ist eine kleine Siedlung entlang des Süd-östlichen Ufers des Ammersees, dem drittgrößten Sees Bayerns. Schon 1808 wurde Wartaweil als Einöde urkundlich erwähnt und hatte zunächst den Namen „Zur weißen Säule“, einer 1626 errichteten Tuffsäule, die den Fischern und Fährleuten als Orientierung diente. Da die wartenden Fährgäste bei vollem Boot gerne mit „Warts a Weil“ vertröstet wurden wandelte sich der Name im Laufe der Zeit zu Wartaweil.
Nach Herrsching sind es mit dem Auto oder Fahrrad nur wenige Minuten. Die Haltestelle der Regionalbuslinie Nr. 953 von Weilheim nach Herrsching ist vor der Haustüre. Herrsching selbst bietet zahlreiche Erholungs- und Sportmöglichkeiten sowie ein vielfältiges Kulturangebot. Es gibt die längste Seepromenade Deutschlands, Dampferrundfahrten auf dem Ammersee, den Kurpark am See, das Kurparkschlösschen mit wechselnden Kunstausstellungen, ein vielfältiges Gastronomieangebot, alle öffentlichen Einrichtungen vom Kino über Bibliothek bis zu Kindertagesstätten und Schulen (neues Gymnasium seit September 2025) sowie Ärzte aller Fachrichtungen. Auch Einkaufen in Herrsching ist ein Erlebnis. Den kleinen Feinkost- oder Bioladen, Bäcker und Metzger bis zum Discounter gibt es ebenso wie Haushaltswarengeschäfte, Heimwerkermarkt und Modegeschäfte für Damen, Herren und Kinder.
Von Herrsching ist man mit der S-Bahnlinie 8 (Flughafenlinie) in einer guten halben Stunde in München. Mit dem Auto fahren Sie von der Haustüre über die A96 ebenfalls in ca. 40 Minuten nach München.
Kurzbeschreibung
• 2-Zimmer-Gartenwohnung, ca. 68,5 m² Wohnfläche mit direktem Seezugang
• im Erdgeschoss eines kleinen, gepflegten Hauses mit nur 2 Wohnungen, die Wohnung im 1. Obergeschoss wird vom Hauseigentümer als Wochenenddomizil genutzt
• sofort bezugsbereit
• helle und sonnige Wohnung nach Westen zur Gartenseite und zum Ufer des Ammersees orientiert
• schönes Wohnzimmer mit großem, bodentiefem Schiebefenster über die gesamte Raumbreite und Kaminofen
• zum Wohnzimmer hin offener Küchenbereich mit allen Anschlüssen für eine Einbauküche
• gut geschnittenes, großes Schlafzimmer mit bodentiefen Erkerfenstern, der Bereich zum Fenster bietet sich hier ideal als Lese- oder Arbeitsecke an
• ca. 15 m² große Südwestterrasse mit anschließendem eigenen, idyllisch eingewachsenen Privatgarten und Zugang von Wohn- und Schlafzimmer
• zusätzlicher, als ruhige Oase zu bezeichnender Freisitz in der Westecke des Gartens
• Privatbad mit Badewanne mit Zugang vom Schlafzimmer, zusätzliches Duschbad mit Türe von der Diele, beide Bäder mit zeitloser, moderner, weißer Ausstattung
• alle Räume mit geöltem Eichenparkett
• Außenrollläden im Schlafzimmer
• praktischer, von der Terrasse aus begehbarer Abstell- bzw. Geräteraum
• Die Wohnung wurde gerade neu renoviert. Vor einigen Jahren wurden am Haus umfangreiche Modernisierungsarbeiten mit Wärmedämmung durchgeführt. Auch das Dach des Hauses und die Heizungsanlage wurden erneuert.
• dazugehöriger PKW-Stellplatz
• alle Geschäfte des täglichen Bedarfs, Arztpraxen, nette Cafés und Restaurants, Schulen, Kindergärten und sonstige öffentliche Einrichtungen sowie S-Bahn befinden sich in Herrsching und sind bequem zu erreichen.
• Energieausweis: Da es sich um ein 2-Familienhaus mit ausschließlicher Wohnnutzung handelt wurde am 12.07.2025 ein Bedarfsausweis für Wohngebäude erstellt.
Heizung: Gasbrennwertheizung aus 2012, Baujahr: 1962
Endenergiebedarf: 115,82 kWh/(m²*a), Energieeffizienzklasse: D
Nettokaltmiete monatlich | € | 1.250.-- |
Betriebskostenvorauszahlung | € | 110.-- |
Heizkostenvorauszahlung | € | 110.-- |
Bruttowarmmiete monatlich | € | 1470.-- |
Kaution
3 Nettokaltmieten à | € | 1.250.-- |
Gesamtkaution | € | 3.750.-- |
Die Kaution ist sofort bei Mietvertragsabschluss zur Zahlung fällig.